必一(B-sports)运动·官方网站

保利虹桥和著售楼处│保利虹桥和著(营销中心)-2026销售中心(售楼处)-楼盘欢迎您-价格户型地址环境配套交房时间电话-必一运动官方网站

132-2868-9785
保利虹桥和著售楼处│保利虹桥和著(营销中心)-2026销售中心(售楼处)-楼盘欢迎您-价格户型地址环境配套交房时间电话
发布者:小编浏览次数:发布时间:2026-01-14

  您当前使用的浏览器版本过低,可能存在安全风险,建议升级浏览器,或者用以下浏览器浏览

  您也可以直接使用焦点APP或微信小程序浏览

  看房请务必致电与销售确认时间,仅预约客户可享受开发商内部优惠,专属新房预约奖!

  最新消息,保利·虹桥和著九年一贯制学校官宣落地!14号线地铁盘!「保利·虹桥和著」将推约94-128㎡3-4房!精奢国际住区!

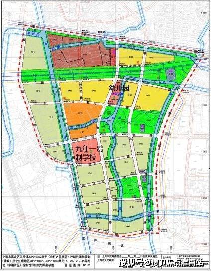
  12月19日,嘉定区与上海师范大学举行深化教育合作签约。上海师范大学拟在江桥镇倾力打造一所公办九年一贯制学校和一所公办幼儿园,为江桥北虹桥地区教育版图再添重彩。

保利虹桥和著售楼处│保利虹桥和著(营销中心)-2026销售中心(售楼处)-楼盘欢迎您-价格户型地址环境配套交房时间电话(图1)

  上师大附属九年一贯制落地选址北虹之星14-01地块,上师大附属幼儿园落地选址北虹之星08-06地块,还将纳入上海师范大学嘉定基础教育集团。

  此外,双方还将探索创新优秀干部的区校共育机制,上海师范大学将委派优秀年轻干部到嘉定区教育局或基层单位任职、挂职,为嘉定教育高质量发展注入新的活力。

  此举将大幅提升江桥地区的教育资源能级,完善北虹桥教育版图,为区域发展带来全新活力和发展机遇。

保利虹桥和著售楼处│保利虹桥和著(营销中心)-2026销售中心(售楼处)-楼盘欢迎您-价格户型地址环境配套交房时间电话(图2)

  消息一出,江桥家长群直接嗨翻!要知道,上师大基础教育集团综合实力更是强劲的很,“含金量”非常之高!

  近年来,上师大基础教育集团还先后在嘉定、松江、宝山、金山、青浦成立了教育子集团,助力各区域教育水平升级。

  有如此实力名校加持,不用多说,江桥的教学水平和高素质人口导入也将迈上新台阶,江桥区域将迎来新的未来!上师大资源的引入,是对上虹桥这片成片规划打造的城市更新区的价值高度的证言。

  对于购房者来说,优质教育为孩子的未来增添了一份确定性,作为片区内首发项目——保利·虹桥和著来说,更可谓是如虎添翼。

  地铁+学校,掌握当下现有的超强确定性;一手国际社区+进阶宅,掌握未来的超强发展上限。据悉,保利虹桥和著正在认购中,热势抢购,火热数据实力出圈!

  为了让“和著系”能在上海一炮而红,保利虹桥和著方方面面不惜成本拿出高标准配置,打造兼顾实用价值与情绪价值的作品。

保利虹桥和著售楼处│保利虹桥和著(营销中心)-2026销售中心(售楼处)-楼盘欢迎您-价格户型地址环境配套交房时间电话(图3)

  还未进入小区,远远就能看见约100米超长沿街酒店式落客礼仪大门,臻选贝金米黄石材打造,历久弥新,豪宅级的归家仪式感由此拉开。

保利虹桥和著售楼处│保利虹桥和著(营销中心)-2026销售中心(售楼处)-楼盘欢迎您-价格户型地址环境配套交房时间电话(图4)

  项目得建筑主体则采用高级灰+香槟金铝板线条,浅色臻石基座,融合以海派建筑元素,以经典三段式建筑,演绎东方式的低调奢华,L型折板+横向线条,将建筑的立面雕刻得更具层次与质感。

保利虹桥和著售楼处│保利虹桥和著(营销中心)-2026销售中心(售楼处)-楼盘欢迎您-价格户型地址环境配套交房时间电话(图5)

  整个社区打造了“两轴、三带、六园”的景观结构,环环相扣、交相辉映,约160m的中央花园轴,以翠影草坪为核心,串联尊享迎厅、水榭林涧、星际乐园、悠活天地等功能空间,将公园生活引入自家社区,还有五重归家礼序,以悦享门廊为核心,森活绿地无界相融,营造城市与家之间的松弛缓冲带,值得一提的是,整个园林设计中大量应用爱马仕灰大理石铺装,不惜成本提升质感。

保利虹桥和著售楼处│保利虹桥和著(营销中心)-2026销售中心(售楼处)-楼盘欢迎您-价格户型地址环境配套交房时间电话(图6)

  地下地上双精装入户大堂,为业主营造星级酒店式的礼遇,不仅地上入户大堂品质感十足,地下大堂也光影璀璨铺陈,电梯直达业主私享入户门厅,特别是双开门电梯+阳光梯厅的独创设计,给足了媲美千万级豪宅的尊崇感。

  保利·虹桥和著将推约94-128㎡3-4房,共计598套房源,目前售楼处&样板房已开放,预计将于本月入市。

保利虹桥和著售楼处│保利虹桥和著(营销中心)-2026销售中心(售楼处)-楼盘欢迎您-价格户型地址环境配套交房时间电话(图7)

  保利虹桥和著的户型设计格外出众,在精控面积的同时,通过优秀的格局设计,让空间效率大大提升,非常具有代表性的就是,充分利用了双开门电梯+阳光梯厅的优势,打造独立外玄关空间,营造归家仪式感的同时,也具有相当的实用价值

  “麻雀虽小五脏俱全”虽然相比一般百平米左右三房,该户型在建筑面积上缩减了约10㎡,但功能与尺度却不逊色,南北通透的飞机户型,没有过道浪费,因而保证了适宜的尺度感,LDKG一体化设计让几个功能区独立又互通,没有视觉遮挡也使得将空间感进一步拓展,阳台270°采光+多飘窗设计,打开更多的采光面与视野面,也大大提升了室内的通透感与舒适度,细节方面,次卫干湿分离的设计,提高了使用效率这对于小户型非常重要。

保利虹桥和著售楼处│保利虹桥和著(营销中心)-2026销售中心(售楼处)-楼盘欢迎您-价格户型地址环境配套交房时间电话(图8)

  建面约104㎡3房,在建面94㎡小3房优点上,又进一步升级了尺度感,约10.3m的南向面宽,为室内带来了出众的采光面和尺度感,这个户型无论从实用性、尺度感,亦或是视野、采光、私密性来说,都做得相当优秀。

保利虹桥和著售楼处│保利虹桥和著(营销中心)-2026销售中心(售楼处)-楼盘欢迎您-价格户型地址环境配套交房时间电话(图9)

  过去很长一段时间,由于土地端7090政策限制,新房产品绝大部分以百平米左右刚需产品为主,而保利虹桥和著此次将推出建面约128㎡稀缺舒适四房,本身就是一次难得的改善机遇,更何况该户型设计非常亮眼,四开间朝南设计,尽可能将更多阳光引入室内,主卧270度飘窗+南北通透大套房设计,同级别户型中十分罕见,充分满足舒适度和身份感。

保利虹桥和著售楼处│保利虹桥和著(营销中心)-2026销售中心(售楼处)-楼盘欢迎您-价格户型地址环境配套交房时间电话(图10)

  而在精装方面,保利虹桥和著不仅甄选国际知名品牌,而且配置内容相当丰富,举几个例子:

  比如厨房除了常规配置的厨电套件,还有洗碗机、末端净水装置、线性凉霸,以及定制橱柜等;又比如主卫,除了知名品牌龙头与台盆,还配置了智能马桶,可以说从业主真正生活的角度出发,精心营造品质生活。

保利虹桥和著售楼处│保利虹桥和著(营销中心)-2026销售中心(售楼处)-楼盘欢迎您-价格户型地址环境配套交房时间电话(图11)

  必一运动

  江桥北虹桥作为嘉定区“十四五”乃至更长时期发展的重要增长极和强力引擎,规划中已经明确将全力打造成为承载虹桥国际中央商务区主导功能,链接辐射长三角的创新经济集聚区、中央商务配套区和高品质国际化社区。

保利虹桥和著售楼处│保利虹桥和著(营销中心)-2026销售中心(售楼处)-楼盘欢迎您-价格户型地址环境配套交房时间电话(图12)

  在功能布局上,整个江桥将呈现“一核聚能、一带润城、三轴联动、四区共荣”的北虹桥全新城市空间格局,积极承载虹桥国际中央商务区“大科创”功能,以创新经济、总部经济为特色,打造数字新经济、生命新科技、低碳新能源、汽车新势力产业链融合生态集群。

保利虹桥和著售楼处│保利虹桥和著(营销中心)-2026销售中心(售楼处)-楼盘欢迎您-价格户型地址环境配套交房时间电话(图13)

  在规划设计上,全新北虹桥开发地区遵循“以人为本、产城融合、多元包容、活力共享”的理念,对土地进行规划调整、整体提升、功能再造,着力打造“产城融合示范区、三生融合体验区、政企合作样板区”。

  其实在去年,江桥为配合规划而打造的三大标杆性项目建设“一城、一湾、一区”均已提速。

  总面积约2.75平方公里,规划可建商办超20万m²;围绕科技创新、商贸流通和咨询服务三大重点行业,大力发展创新经济、总部经济和数字经济。

保利虹桥和著售楼处│保利虹桥和著(营销中心)-2026销售中心(售楼处)-楼盘欢迎您-价格户型地址环境配套交房时间电话(图14)

  总建筑面积37万㎡,嘉定“五型经济”的重要承载区,绿色开放、生态和谐、名企林立的总部集聚标杆地。

保利虹桥和著售楼处│保利虹桥和著(营销中心)-2026销售中心(售楼处)-楼盘欢迎您-价格户型地址环境配套交房时间电话(图15)

  然而,这两个项目规模都受制于土地的捉襟见肘,规模不算大。真正能形成质变的,就是“一区”——“上虹桥·城市更新区”,其中就包括了西区北虹之星社区和东区幸福产业片区!

保利虹桥和著售楼处│保利虹桥和著(营销中心)-2026销售中心(售楼处)-楼盘欢迎您-价格户型地址环境配套交房时间电话(图16)

  2023年10月,《嘉定“上虹桥·城市更新区”规划》正式发布,北虹桥商务区“一城、一湾、一区”规划中,“一区”的规划更清晰了——未来将成为大虹桥乃至上海甚至整个长三角的创新经济集聚区、中央商务配套区和高品质国际化社区,引领赋能大虹桥和长三角。

保利虹桥和著售楼处│保利虹桥和著(营销中心)-2026销售中心(售楼处)-楼盘欢迎您-价格户型地址环境配套交房时间电话(图17)

  “上虹桥·城市更新区”由嘉定区与上海地产集团共同推进,采用整体开发模式,品质和界面将得到更大的保障。项目一期占地面积约2500亩,分为东西两个片区。

  西区规划约1100亩土地,整体规划为“一轴两心,五区连网”,着力打造功能复合、绿色低碳、全龄友好的国际社区。这个片区包含了幼儿园、国际学校、九年一贯制学校的规划用地,大量的公共绿地及水系资源,增加了生态宜居的标签。

保利虹桥和著售楼处│保利虹桥和著(营销中心)-2026销售中心(售楼处)-楼盘欢迎您-价格户型地址环境配套交房时间电话(图18)

保利虹桥和著售楼处│保利虹桥和著(营销中心)-2026销售中心(售楼处)-楼盘欢迎您-价格户型地址环境配套交房时间电话(图19)

  东区规划约1400亩土地,整体架构为“一核、一带、两轴、多组团”,聚焦商务研发功能。

保利虹桥和著售楼处│保利虹桥和著(营销中心)-2026销售中心(售楼处)-楼盘欢迎您-价格户型地址环境配套交房时间电话(图20)

保利虹桥和著售楼处│保利虹桥和著(营销中心)-2026销售中心(售楼处)-楼盘欢迎您-价格户型地址环境配套交房时间电话(图21)

  目前,嘉定区已构建“1+4+N”产业政策体系,尤其在契合北虹桥发展的创新经济、总部经济等方面给予支持。

  同时,“上虹桥·城市更新区”还享有虹桥、张江、临港、嘉定四重政策区的叠加优势,在产业、科创、财税、人才等方面均享有最优方案。

保利虹桥和著售楼处│保利虹桥和著(营销中心)-2026销售中心(售楼处)-楼盘欢迎您-价格户型地址环境配套交房时间电话(图22)

  近地铁嘉闵线乐秀路站(在建中),约3站直达虹桥(以政府规划为准),加速链接虹桥商务区、七宝、莘庄等重要区域。

  “三横三纵”的交通布局是上海核心区域的重要网络,三横包括曹安公路、京沪高速和沪嘉高速;三纵则由嘉闵高架、中环高架和外环高速构成。其中嘉闵高架作为上海“三横三纵”重要南北动脉,接轨虹桥商务区,高效连接上海各区。

保利虹桥和著售楼处│保利虹桥和著(营销中心)-2026销售中心(售楼处)-楼盘欢迎您-价格户型地址环境配套交房时间电话(图23)

  ①项目南向约6公里是江桥万达广场(约25万方,集购物、餐饮、娱乐、休闲等多功能于一体的大型商业综合体,西上海重要的商业地标之一),北向开车约6.5公里即达南翔印象城(约34万方,当下上海最大单一商业体)、南翔山姆会员店;项目东向1.5公里龙湖欢肆商业(在建)、维乐城,满足您一切消费需求。

  您可以通过14号线站就可以到达静安寺商圈,一步享受上海中心城区商业配套。

  ②本项目西侧规划商业约1.4万方、南侧社区中心约1.4万方(含菜场约2100㎡、运动中心约2600㎡),且包含“人民坊”示范项目。将会打造成为江桥的核心商业之一。保利·虹桥和著售楼处电话:【预约看房热线】保利·虹桥和著官方售楼处电话:【售楼处电话/地址】保利·虹桥和著售楼处电话:【开发商认证】

保利虹桥和著售楼处│保利虹桥和著(营销中心)-2026销售中心(售楼处)-楼盘欢迎您-价格户型地址环境配套交房时间电话(图24)

  教育资源丰富、未来将引进国际化特色民办学校(规划中),同时规划了九年一贯制公办学校,家门口即可享受全龄段优质教育资源。

保利虹桥和著售楼处│保利虹桥和著(营销中心)-2026销售中心(售楼处)-楼盘欢迎您-价格户型地址环境配套交房时间电话(图25)

  约1.2km绿野谷(规划中)、迎虹湖(规划中)连接U型廊与一字川,构建起滨水城市界面。繁华与滨水同赏,重著国际湖居森活新样板。

保利虹桥和著售楼处│保利虹桥和著(营销中心)-2026销售中心(售楼处)-楼盘欢迎您-价格户型地址环境配套交房时间电话(图26)

  看房请务必致电与销售确认时间,仅预约客户可享受开发商内部优惠,专属新房预约奖!

  声明:本文由入驻焦点开放平台的作者撰写,除焦点官方账号外,观点仅代表作者本人,不代表焦点立场。

  中环麓岛售楼处│中环麓岛 (营销中心) 官网 - 2026中环麓岛销售中心 (中环麓岛售楼处)- 楼盘欢迎您 - 价格 / 户型 / 地址 / 环境 / 配套 / 电话

  上海宝山中环麓岛售楼处电话:【预约看房热线】中环麓岛售楼处电线【售楼处电话/地址】中环麓岛售楼处电话:【开发商认证】上海宝山中环麓岛二期即将入市,主打108-13楼王,周边配套完善,近100%实得率,地铁15号线旁,

  中环麓岛_(中环麓岛售楼处电话)_中环麓岛营销中心电话_来电预约看房@楼盘测评-2026最新房价_楼盘详情-最新样板间-户型图-容积率

  上海宝山中环麓岛售楼处电话:【预约看房热线】中环麓岛售楼处电线【售楼处电话/地址】中环麓岛售楼处电话:【开发商认证】上海宝山中环麓岛小区即将入市,配有地铁、公园、双阳台,均价67410元/㎡,售楼处电线-

  中环麓岛(中环麓岛售楼处)售楼处电话_预约看房_楼盘详情-2026中环麓岛最新房价-售楼处电话_营销中心

  上海宝山中环麓岛二期售楼处电线元/㎡,位于南大核心,地铁15号线旁,周边配套完善。

  中海环宇玖章(售楼处)官方电话中海环宇玖章售楼中心前台电线中海环宇玖章楼盘百科楼盘官方网站楼盘测评售楼中心电话来电预约看房

  澐启滨江首页网站澐启滨江售楼处欢迎您-价格-户型-楼盘详情澐启滨江优缺点分析

  春申景城(售楼处)官方网站-春申景城销售中心(营销中心)-春申景城售楼处电话-户型-价格-开盘时间-楼盘详情-周边配套-2026春申景城得房率

  中海环宇玖章(营销中心)-中海环宇玖章销售中心(售楼处)-中海环宇玖章楼盘欢迎您-地址-价格-户型-小区环境-楼盘详情-交房时间-周边配套-售楼处电线

  上海金山国印东方官方售楼处电话国印东方售楼中心电线年国印东方楼盘百科首页网站楼盘测评售楼中心电话楼盘百科24小时热线中海阅泓山晓(售楼处电话)官方网站-阅泓山晓楼盘电话/地址-阅泓山晓_户型图_价格_容积率_楼盘简介_小区环境_户型配套

  苏州姑苏叠墅建发璟园建发璟园怎么样?核心区唯一纯宋风低密社区户型位置周边配套价格

  上海浦东陆家嘴太古源源邸售楼中心-(太古源源邸售楼处)2025太古源源邸楼盘详情-最新房价-首页网站-户型配套

  联仲都悦汇官方售楼处电话(联仲都悦汇)官方网站-联仲都悦汇营销中心欢迎您-楼盘详情最新价格-户型图-容积率@2026.1.7售楼处AI热搜

  苏州园区新房高端改善保利天汇星湖保利天汇星湖怎么样?园区核心红盘深度解析户型位置周边配套价格售楼处

  大华星曜(售楼处) 官方大华星曜售楼中心 - 环境 - 户型 - 价格 - 地址 - 楼盘详情 - 配套 - 电话 - 交房时间 - 配套 - 电话 - 交房时间

友情链接

友链合作