必一(B-sports)运动·官方网站

深圳光明:深业云筑:国企品质大盘学区与配套双优之选-必一运动官方网站

132-2868-9785
深圳光明:深业云筑:国企品质大盘学区与配套双优之选
发布者:小编浏览次数:发布时间:2026-03-15

  温馨提示:因近期参观的购房者较多,所以本楼盘采取预约制,过来营销中心现场参观样板间请记得提前拨打开发商售楼处400热线电话在线预约,预约看房价格更优惠,感谢您的配合!

深圳光明:深业云筑:国企品质大盘学区与配套双优之选(图1)

  深业云筑原推广名深业信宏城,位于深圳市光明区公明马田街道,大型商业居住综合体宏发天汇城南侧,光明新区高级中学西侧,自2020年9月动工至今在即将入市前期更名深业云筑,项目占地约4.9万㎡,总建筑面积32.7万㎡,计容建筑面积22.26万㎡,项目分南区(一期)、北区(二期),共由14栋高层住宅组成。

深圳光明:深业云筑:国企品质大盘学区与配套双优之选(图2)

深圳光明:深业云筑:国企品质大盘学区与配套双优之选(图3)

  39载国企标范,深业鹏南集团曾荣获“中国房地产百优企业”、“中国房地产诚信企业”等多项荣誉称号。深业首进光明,匠心打造品质纯居大城,引领光明生活方式迭代升级。

深圳光明:深业云筑:国企品质大盘学区与配套双优之选(图4)

  光明区作为粤港澳大湾区和广深科技创新走廊的重要节点,依托约99平方公里光明科学城,汇聚中山大学深圳校区、国家超算中心等世界一流科创资源,打造世界一流科学城。

  华发综合体(旧改中):规划建面约46万㎡,其中含约15万㎡购物中心、甲级写字楼、五星级酒店。

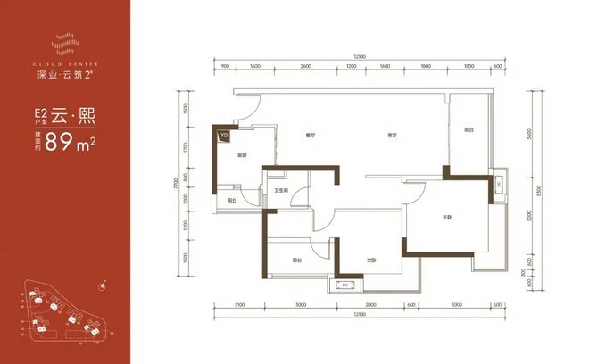
  89㎡的3房2厅1卫,E2户型,设计的是竖厅格局,客厅3.6米开间,LDKB一体化设计,3个卧室分别做到了主卧13.5㎡/次卧9.54㎡/次卧8.1㎡(含墙体飘窗),L型厨房还带1个小生活阳台,卫生间三段式分离,得房率:79.89%(不含赠送),东南/西南或正南朝向。

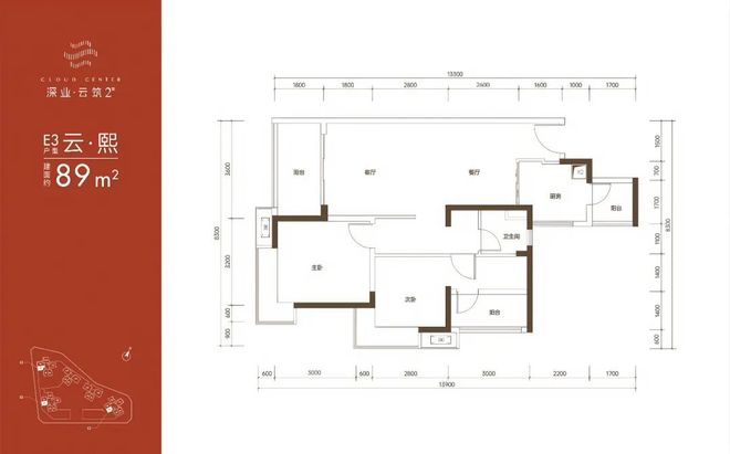
  89㎡的3房2厅1卫,E3户型,仅4栋/5栋A单元/7栋的03号房才有,设计的是竖厅格局,客厅3.6米开间,LDKB一体化设计,3个卧室分别做到了主卧13.3㎡/次卧9.34㎡/次卧8.4㎡(含墙体飘窗),二字型厨房还带1个小生活阳台,卫生间三段式分离,得房率:79.89%(不含赠送),西南朝向。

深圳光明:深业云筑:国企品质大盘学区与配套双优之选(图5)

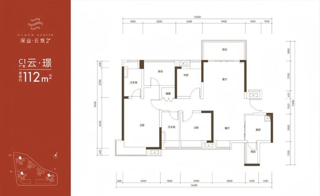
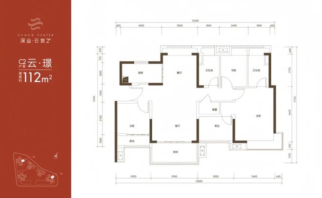
  112㎡的4房2厅2卫,C1户型,仅4栋/5栋A单元/7栋的05号房才有,设计的是竖厅南北通透格局,客厅3.9米开间,餐客厅一体化设计,4个卧室分别做到了主卧22.44㎡/次卧9.9㎡/次卧8.95㎡/次卧7.85㎡(含墙体飘窗),U型厨房还带1个小生活阳台,卫生间干湿分离,得房率:79.88%(不含赠送),阳台主朝西南向。112㎡的4房2厅2卫,C2户型,仅5栋A单元/7栋的06号房才有,设计的是竖厅南北通透格局,客厅3.9米开间,餐客厅一体化设计,4个卧室分别做到了主卧16.9㎡/次卧10.73㎡/次卧10.5㎡/次卧7.85㎡(含墙体飘窗),U型厨房,卫生间干湿分离,得房率:79.89%(不含赠送),阳台主朝东南向。

深圳光明:深业云筑:国企品质大盘学区与配套双优之选(图6)

深圳光明:深业云筑:国企品质大盘学区与配套双优之选(图7)

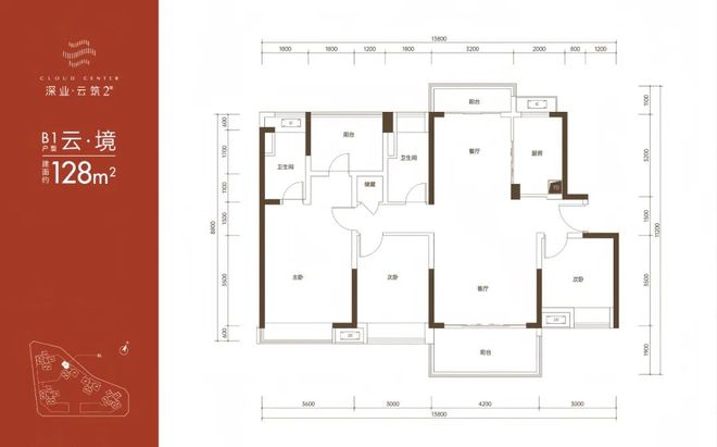
  128㎡的4房2厅2卫,B1户型,仅5栋B单元的03号房才有,设计的是竖厅格局,南北通透双阳台,客厅4.2米开间,餐客厅一体化设计,4个卧室分别做到了主卧19.44㎡/次卧12.3㎡/次卧12㎡/次卧10.5㎡(含墙体飘窗),U型厨房,卫生间干湿分离,得房率:79.71%(不含赠送),大阳台主朝正南向。

深圳光明:深业云筑:国企品质大盘学区与配套双优之选(图8)

  128㎡的4房2厅2卫,B4户型,仅4栋的06号房才有,设计的是竖厅南北通透格局,客厅4.2米开间,餐客厅一体化设计,4个卧室分别做到了主卧20㎡/次卧12.3㎡/次卧11.1㎡/次卧10.2㎡(含墙体飘窗),U型厨房,卫生间干湿分离,得房率:80.14%(不含赠送),阳台主朝东南向。

  143㎡的5房2厅2卫,A1户型,设计的是竖厅格局,南北通透双阳台,客厅4.5米开间,餐客厅一体化设计,5个卧室分别做到了主卧20.72㎡/次卧11.52㎡/次卧10.44㎡/次卧10.07㎡/次卧7.5㎡(含墙体飘窗),U型厨房,卫生间干湿分离,得房率:80.4%(不含赠送),阳台主朝正南向。

深圳光明:深业云筑:国企品质大盘学区与配套双优之选(图9)

深圳光明:深业云筑:国企品质大盘学区与配套双优之选(图10)

  深业云筑项目总体来说还是相当不错的属于光明区的公明片区,片区人流量还是比较多的,深业也是在深圳口碑非常不错的开发商,周边就有大型的商业如公明大千里,唯一的劣势就是离地铁站有700米左右。

  必一运动官网

  我们楼盘开发商售楼处400电话没有设置任何所谓的“分机号”,拨打前请仔细甄别,注意保护个人隐私!谨防上当!

友情链接

友链合作