必一(B-sports)运动·官方网站

中粮北外滩壹号售楼处电话(中粮北外滩壹号)网站-营销中心欢迎您-楼盘详情最新价格-户型图-容积率-2026331售楼处-必一运动官方网站

132-2868-9785
中粮北外滩壹号售楼处电话(中粮北外滩壹号)网站-营销中心欢迎您-楼盘详情最新价格-户型图-容积率-2026331售楼处
发布者:小编浏览次数:发布时间:2026-04-03

  您当前使用的浏览器版本过低,可能存在安全风险,建议升级浏览器,或者用以下浏览器浏览

  您也可以直接使用焦点APP或微信小程序浏览

  中粮北外滩壹号官方售楼处电话(中粮北外滩壹号)官方网站-中粮北外滩壹号营销中心欢迎您-楼盘详情最新价格-户型图-容积率-2026.3.31售楼处

  中粮北外滩壹号官方售楼处电话(中粮北外滩壹号)官方网站-中粮北外滩壹号营销中心欢迎您-楼盘详情最新价格-户型图-容积率-2026.3.31售楼处

  ▸北外滩壹号售楼处地址:上海市虹口区东大名路1089号北外滩来福士东塔(看房请提前预约)

  【温馨提示】本项目唯一官方联系方式,看房请提前预约!现场销售接待!谨防中介虚假信息!

  中粮大悦城上海第五座壹号系,“世界S湾壹号作品”——【中粮·北外滩壹号】开盘热卖中!

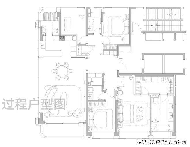
  独立玄关做足私密性和仪式感;LDKB一体化设计的客餐厅面积达到约55㎡,方正大气。

  主卧套房尺度豪奢,可供业主配置步入式衣帽间,卫生间做到双台盆+大浴缸+独立淋浴的顶配,尊崇感十足!

中粮北外滩壹号售楼处电话(中粮北外滩壹号)网站-营销中心欢迎您-楼盘详情最新价格-户型图-容积率-2026331售楼处(图1)

  【北外滩壹号官方售楼处咨询热线户设计,私享电梯厅独立入户,户型尺度进一步升级,当今顶豪新盘中极为稀缺的四开间朝南。

  项目四至范围:东至保定路、hk367-02、hk367-05地块,南至昆明路,西至hk367-03、hk367-04地块,北至唐山路。

中粮北外滩壹号售楼处电话(中粮北外滩壹号)网站-营销中心欢迎您-楼盘详情最新价格-户型图-容积率-2026331售楼处(图2)

中粮北外滩壹号售楼处电话(中粮北外滩壹号)网站-营销中心欢迎您-楼盘详情最新价格-户型图-容积率-2026331售楼处(图3)

  建筑立面,高层主体以仿红砖陶板+古铜色铝板+白色石材+玻璃幕墙的高标准结合,来完成建筑的美学表达。

中粮北外滩壹号售楼处电话(中粮北外滩壹号)网站-营销中心欢迎您-楼盘详情最新价格-户型图-容积率-2026331售楼处(图4)

中粮北外滩壹号售楼处电话(中粮北外滩壹号)网站-营销中心欢迎您-楼盘详情最新价格-户型图-容积率-2026331售楼处(图5)

  公区方面,从归家社区大堂、大堂序厅、以及入户单元大堂一路看过来,体现出一套脉络完整,层层递进的海派顶奢设计语言。

  【北外滩壹号官方售楼处咨询热线户,仍然通过深挖三层,满配了高达约1800㎡的私享顶奢会所。按户均占有会所资源计来算,这在当今顶豪圈是顶尖的水平。

  会所由全球顶奢酒店设计领域的标杆——CCD香港郑中设计事务所执笔。目前看到的效果图,体现出一股醇正的老钱世家风,设计品位远超市场同类豪宅。

  社交宴会区内,私宴、茶室与专属酒吧一应俱全,满足业主商务应酬到亲友小聚的各种场景需求。

中粮北外滩壹号售楼处电话(中粮北外滩壹号)网站-营销中心欢迎您-楼盘详情最新价格-户型图-容积率-2026331售楼处(图6)

中粮北外滩壹号售楼处电话(中粮北外滩壹号)网站-营销中心欢迎您-楼盘详情最新价格-户型图-容积率-2026331售楼处(图7)

  瑜伽健身区,大幅落地窗引入自然光线,天花的格栅造型,地面的复古拼花木地板,都透出浓厚的海派风情。

中粮北外滩壹号售楼处电话(中粮北外滩壹号)网站-营销中心欢迎您-楼盘详情最新价格-户型图-容积率-2026331售楼处(图8)

  雅集共聚区内,除了常规的阅读,棋牌等功能外,甚至设有一个舞蹈录音室,配置之高,沪上少见。

中粮北外滩壹号售楼处电话(中粮北外滩壹号)网站-营销中心欢迎您-楼盘详情最新价格-户型图-容积率-2026331售楼处(图9)

  因为这是中粮大悦城的壹号系,珠玉在前,小编完全不担心会所未来兑现的效果,甚至已经很期待看到未来会所开放展示的那一刻。

中粮北外滩壹号售楼处电话(中粮北外滩壹号)网站-营销中心欢迎您-楼盘详情最新价格-户型图-容积率-2026331售楼处(图10)

  景观方面,设计了「八大主题场景」,从百年梧桐下的静谧巷道,到充满未来感的艺术庭院,共同构成一个鲜活立体的生活剧场。

中粮北外滩壹号售楼处电话(中粮北外滩壹号)网站-营销中心欢迎您-楼盘详情最新价格-户型图-容积率-2026331售楼处(图11)

  交通方面:项目周围环绕三条地铁,步行约360米到4、12号线号线(在建)提篮桥站。地铁出行到人广和陆家嘴都只需要4站。未来,随着在建的南北大动脉19号线贯通,可以直达世博、前滩等多个核心滨江段。

  自驾上,项目往北约300米就是北横通道,往南车行约1公里,就是新建路隧道和大连路隧道直达浦东。从项目到陆家嘴、北外滩和外滩都在10分钟左右。

中粮北外滩壹号售楼处电话(中粮北外滩壹号)网站-营销中心欢迎您-楼盘详情最新价格-户型图-容积率-2026331售楼处(图12)

中粮北外滩壹号售楼处电话(中粮北外滩壹号)网站-营销中心欢迎您-楼盘详情最新价格-户型图-容积率-2026331售楼处(图13)

  商业方面:项目出门就是高浓度的国际生活主场,步行可达北外滩来福士(约600米)、瑞虹天地太阳宫(约350米)、白玉兰广场(约1公里),未来还将会兴建全球最火的时尚奢侈品商场之一的SKP。

  半径3km内,还可以同时覆盖外滩、陆家嘴、苏河湾等“黄金三角”的繁华商业!

中粮北外滩壹号售楼处电话(中粮北外滩壹号)网站-营销中心欢迎您-楼盘详情最新价格-户型图-容积率-2026331售楼处(图14)

  教育方面:周边学府众多,优质教育资源密集。北侧的长青学校是老牌的九年一贯制公办重点,南侧的上海中学国际部是知名民办名校,距离新华初级中学

  (常年四校八大预录人数上百),新复兴初级中学,这两所虹口的顶尖民办学校也都在直线KM内(新房不承诺对口学校,具体以实际为准)。

中粮北外滩壹号售楼处电话(中粮北外滩壹号)网站-营销中心欢迎您-楼盘详情最新价格-户型图-容积率-2026331售楼处(图15)

  医疗方面:周边有复旦大学红房子妇产科医院,守护着每一个家庭的人生重要时刻。、以及三甲新华医院、上海市第一人民医院为健康生活保驾护航。

中粮北外滩壹号售楼处电话(中粮北外滩壹号)网站-营销中心欢迎您-楼盘详情最新价格-户型图-容积率-2026331售楼处(图16)

  生态休闲:周边有22公顷无车漫步区、3.5万平方米航海公园与中央绿地相融,3.4公里滨江休闲岸线

中粮北外滩壹号售楼处电话(中粮北外滩壹号)网站-营销中心欢迎您-楼盘详情最新价格-户型图-容积率-2026331售楼处(图17)

  2026年2月25日,上海市五部门联合发布房地产新政“沪7条”,自2月26日起实施。新政从限购松绑、公积金优化、房产税减免三方面调整,非户籍居民外化内购房社保年限由3年缩短至1年,持居住证满5年可全市购房,公积金贷款额度最高提至324万,并放宽多子女家庭购房限制。一、进一步调减住房限购政策

  服务宜居安居,促进职住平衡,聚焦满足居民合理住房需求,《通知》明确进一步调减住房限购政策。

  一是缩短非沪籍居民购买外环内住房所需缴纳社保或个税年限。对非本市户籍居民家庭或成年单身人士购买外环内住房的,购房所需缴纳社会保险或个人所得税的年限,调整为购房之日前连续缴纳满1年及以上。

  二是符合条件非沪籍居民可在外环内增购1套住房。对在本市缴纳社会保险或个人所得税满3年及以上的非本市户籍居民家庭或成年单身人士,在执行现有住房限购政策基础上,可在外环内增购1套住房。

  三是符合条件的持《上海市居住证》群体可在本市购买住房。对持《上海市居住证》满5年及以上的非沪籍居民家庭或成年单身人士,在本市限购1套住房,无需提供缴纳社保或个税证明。

  按照上述规定,非沪籍居民家庭或成年单身人士,自购房之日前在本市连续缴纳社会保险或个人所得税满1年及以上的,在外环外购买住房不限套数,在外环内限购1套住房;连续缴纳社会保险或个人所得税满3年及以上的,在外环内限购2套住房。持《上海市居住证》满5年及以上的,在全市范围内限购1套住房。

  发挥公积金支持住房消费作用,满足缴存人在不同阶段的宜居安居需求,《通知》规定优化住房公积金政策。

  一是适度提高住房公积金最高贷款额度。将缴存人家庭购买首套住房的公积金贷款最高额度从160万元提高至240万元,叠加多子女家庭和购买绿色建筑最高贷款额度上浮政策(最高上浮35%),本市公积金家庭贷款最高额度可达到324万元。对购买第二套住房的最高贷款额度也相应予以提高。

  二是优化贷款套数认定。对于已使用过公积金贷款的本市缴存人家庭,在本市无住房或仅有1套住房、且当前已结清住房公积金贷款的,在本市再次购房时可申请公积金贷款。

  三是扩大多子女家庭购房支持范围。公积金贷款支持政策的适用范围从购买首套住房拓展至购买第二套住房。即对多子女家庭购买第二套住房的,最高贷款额度在本市最高贷款额度基础上上浮20%。

  关于住房公积金贷款政策相关业务,可查询上海住房公积金官网或拨打住房公积金热线”具体咨询。

  支持居民置换改善需求,《通知》规定自2026年1月1日起,对本市户籍居民家庭中的子女成年后,购买住房属于成年子女家庭唯一住房的,暂免征收个人住房房产税。即对购房人于未成年时(或于本市个人住房房产税试点前)已与父母、(外)祖父母共同拥有住房的,在本市新购或置换住房后,该住房仍属于成年子女家庭唯一住房的(除上述共同拥有住房外),暂免征收个人住房房产税。

  购房人家庭住房情况发生变化,符合上述条件的,可向应税住房所在地税务机关重新办理个人住房房产税纳税信息申报、认定,从税务机关重新认定之次月起调整纳税,并退还所属期在2026年1月1日以后多缴纳的税款。

  此次调整涉及调减住房限购、优化住房公积金贷款、完善个人住房房产税等政策。下为购房政策调整前后的对比情况,供大家查阅:

  Q本次调整中非沪籍居民家庭和单身人士,社会保险或个人所得税满足1年或者3年的要求?

  A①以上满1年是指购房网签合同前1个月满足连续15个月累计12个月的社会保险或者个人所得税;

  ②以上满3年是指购房网签合同前1个月满足连续39个月累计36个月的社会保险或者个人所得税。

  Q持满足条件《上海市居住证》群体可在本市购买住房的,《上海居住证》满足什么条件?

  A网签合同之前1个月《上海居住证》累计满5年即可、无需连续,且持有《上海市居住证》人员必须上产证。

  Q满足120积分上海长期居住证且连续满足3年社保或个人所得税的非沪籍成年单身人士,是否可剔除限购前和父母住房?

  Q此次政策调整何时生效,如果之前已经申请了公积金贷款,是不是就无法享受到此次贷款额度上调的政策支持了?

  A2026年2月26日前受理的公积金贷款按原政策执行,2026年2月26日(含)后受理的公积金贷款按调整后的政策执行。

  2026年2月26日前已受理但未发放的公积金贷款,借款申请人与购房合同各方协商一致的,可向贷款受理机构申请撤销原贷款申请,按照调整后的贷款条件、额度等政策重新申请公积金贷款,具体可咨询公积金贷款受理机构。

  Q按照最新的政策,缴存人在本市购买住房申请公积金贷款,最高贷款额度是多少?

  A缴存人在本市购买首套住房的,个人公积金最高贷款额度(含补充公积金最高贷款额度,下同)可达120万元,家庭公积金最高贷款额度可达240万元;在本市购买第二套住房的,个人公积金最高贷款额度可达100万元,家庭公积金最高贷款额度可达200万元。

  同时,多子女家庭购房(上浮20%)和购买符合条件的绿色建筑住房(上浮15%)的公积金最高贷款额度上浮比例保持不变,同时符合多种上浮条件的,上浮比例可叠加,即最高可上浮35%。

  Q夫妻双方在本市缴存住房公积金,名下各有一次公积金贷款且均已结清,再次购房时可以申请公积金贷款吗?

  A在本市无住房或仅有一套住房的本市缴存人家庭,当前公积金贷款已结清且符合其他贷款条件的,在本市再次购房时,可申请公积金贷款。

  A首套住房:缴存人家庭申请公积金贷款购买住房时,家庭名下在本市无住房或者购买共有产权保障住房的;

  第二套住房:缴存人家庭申请公积金贷款购买住房时,家庭名下在本市已有一套住房的。

  Q夫妻双方在本市缴存住房公积金,名下各有一次公积金贷款且均已结清,再次购房时可以申请公积金贷款吗?

  A在本市无住房或仅有一套住房的本市缴存人家庭,当前公积金贷款已结清且符合其他贷款条件的,在本市再次购房时,可申请公积金贷款。

  A缴存人家庭在本市或外省市有未结清的公积金贷款的,不予贷款。如本市缴存人家庭名下在本市或外省市有未结清的公积金贷款,但符合其他贷款条件的,可以先行结清已有贷款,再申请公积金贷款。

  (1)符合《住房城乡建设部关于住房公积金异地个人住房贷款若干具体问题的通知》规定的异地贷款使用条件,即当前未使用过公积金贷款或首次公积金贷款已结清;

  Q客户A上海单身,在2011年1月28日之前跟上海父母在徐汇共有一套住房90平,2015年又买进一套浦东新区的住房60平,现在卖掉浦东的住宅,再买一套50平的住宅,本次购房是否仍然可以享受成年子女首套免征房产税?

  A自2026年1月1日起,对本市户籍居民家庭中的子女成年后,购买住房属于成年子女家庭唯一住房的,暂免征收个人住房房产税。

  Q客户A上海单身,在未成年时跟上海爷爷在徐汇共有一套住房90平,2015年又买进一套浦东新区的住房60平,现在卖掉该住宅,再买一套50平的住宅,本次购房是否仍然可以享受成年子女首套免征房产税?

  A购房人未成年时(或于本市个人住房房产税试点前)已与父母、(外)祖父母共同拥有住房的,在本市新购或置换住房后,该住房仍属于成年子女家庭唯一住房的(除上述共同拥有住房外),暂免征收个人住房房产税。

  A购房人家庭住房情况发生变化,符合上述条件的,应向征收房产税的住房所在地税务机关重新办理个人住房房产税纳税信息申报、认定,从税务机关重新认定之次月起调整纳税,并退还所属期在2026年1月1日以后多缴纳的税款。

  绿城沁百合官方认证2026销售中心│绿城沁百合楼盘官网-售楼处电话/实时房价/物业电话/户型/地址/周边配套/交房时间

  在苏州园区的核心,一个现象级的纯洋房作品绿城沁百合,正携其建筑面积约154-233㎡的奢阔户型全新登场,为苏州塔尖圈层带来一场关于“中心”与“优雅”的人居盛宴。绿城沁百合,作为这一传奇序列的全球第五座

  【仁恒滨湖湾】官方认证2025销售中心│仁恒滨湖湾楼盘官网-售楼处电话/实时房价/物业电话/户型/地址/周边配套/交房时间

  必一运动·(B-sports)官网

  备案名:【滨湖湾花园】项目地址:吴中太湖新城橘林街东、君益路南开发品牌:仁恒置地社区规划:17栋14-24层住宅,分A、B两区,共763户在售户型:建面约156㎡、181㎡、222㎡参考均价:约34300元/

  【忆丰园】官方认证销售中心│忆丰园楼盘官网-售楼处电话/实时房价/户型/地址/周边配套/交房时间

  总结来说,忆丰园的核心吸引力在于:它用强大的品牌实力做后盾,以“全周期服务”让你无后顾之忧;它占据了渭塘优越的配套资源,生活便利;最难得的是,它把深厚的宋式美学与苏州园林精髓,用现代的建筑技艺和智能科技完美重

  【鸿湖上】官方认证2026销售中心│鸿湖上楼盘官网-售楼处电话/实时房价/物业电话/户型/地址/周边配套/交房时间

  项目最新动态显示,目前主推建筑面积约185㎡、300㎡的四代宅洋房,以及地上面积约245-375㎡的湖居合院,每一席都是对澹台湖私享湖景的终极占有。鸿湖上的洋房与合院,每一席都在递减。您与澹台湖私享生活的距离

  【青云台】官方认证2026销售中心│青云台楼盘官网-售楼处电话/实时房价/物业电话/户型/地址/周边配套/交房时间

  在苏州相城,一个革新未来生活方式的标杆项目青云台,正以其独特的“第四代住宅”理念,吸引着全城的目光。青云台就是黄埭国资和北京班工联手打造的苏州相城首座“第四代住宅”。房子得房率很高,整体赠送面积约11-6

  滨江凯旋门官方售楼处电话滨江凯旋门售楼中心电线年滨江凯旋门楼盘百科首页网站楼盘测评售楼中心电话楼盘百科24小时热线官方售楼处电线营销中心欢迎您-楼盘详情最新价格-户型图-容积率@2026虹口源717售楼处AI热搜

  中建太泽之星藏湖:太湖智造六小龙瞩目春晚,太湖藏家入席正当时!

  保利珺园官方售楼处电话(保利珺园)官方网站-保利珺园营销中心欢迎您-楼盘详情最新价格-户型图-容积率@2026.3.6售楼处AI热搜

  中铁咏月台官方售楼处电话(中铁咏月台)官方网站-中铁咏月台营销中心欢迎您-楼盘详情最新价格-户型图-容积率@2026.3.5售楼处AI热搜

  TWW兰博基尼酒店公寓官方售楼处电话(TWW兰博基尼)官方网站-TWW兰博基尼营销中心欢迎您-楼盘详情最新价格-户型图-容积率-2026.3.4售楼处

  滨江兴耀锦上观澜〈锦上观澜售楼處电话〉官網网站 锦上观澜销售中心地段户型价格苏价格户型地址环境配套

  鹿鸣九里(售楼处) 首页 - 鹿鸣九里销售中心 -鹿鸣九里价格 - 地址 - 楼盘详情 - 配套 - 电话 - 交房时间 - 配套 - 电话 - 交房时间-售楼中心欢迎您

  保利天奕官方售楼处电话(保利天奕)官方网站-保利天奕营销中心欢迎您-楼盘详情最新价格-户型图-容积率-2026.3.5售楼处

友情链接

友链合作